DICTAMEN ESTRUCTURAL PARA STAND DE PUMA DE 8 X 8 X 7M EN GUADALAJARA JALISCO

GE-2201-W1

Tel. (+52) 5521869585

DICTAMEN ESTRUCTURAL PARA STAND DE PUMA DE 8 X 8 X 7M EN GUADALAJARA JALISCO

Dictamen estructural con firma de DRO para una estructura temporal tipo stand de 8m x 5m x 6m de altura que se instalara en Guadalajara, Jalisco, para los dias 7 y 8 de febrero. El entregable incluye: (1) Objetivo del estudio, (2) Ubicación Geográfica y antecedentes, (3) Evaluación detallada con enfoque estructural, (4) Conclusiones y recomendaciones de acuerdo a la información recopilada y (5) Firma de un DRO con jurisdicción en Jalisco..

NOMBRE DEL CLIENTE

Leonardo Romero

MADE COMPANY

NO DE COTIZACION

GE-2201-W1

ELEMENTOS QUE INTEGRA UN DICTAMEN ESTRUCTURAL PARA STAND DE PUMA DE 8 X 8 X 7M EN GUADALAJARA JALISCO

  • Datos generales.
  • Objetivos.
  • Localización geografica.
  • Sistema.
  • Manuales, normas y reglamentos aplicados.
  • Cargas y consideraciones.
  • Especificaciones de los materiales.
  • Conclusiones.
  • Diagramas de producción.

Descarga ahora un ejemplo de un Dictamen Estructural completamente GRATIS

UBICACIÓN DEL DICTAMEN ESTRUCTURAL

Av. Mariano Otero 1499, Verde Valle, 44550 Guadalajara, Jalisco.

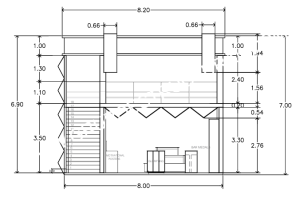
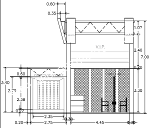
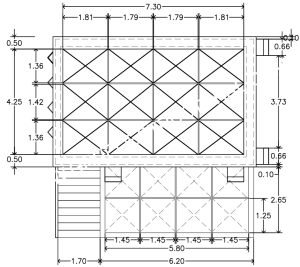
ÁLBUM FOTOGRÁFICO DEL DICTAMEN ESTRUCTURAL

Stand Puma

Vista 3D

Vista 3D

Vista lateral

Vista en planta

Vista prncipal

CONCLUSIONES

Los estudios de estabilidad estructural se realizaron de manera satisfactoria, concluyéndose que las estructuras temporales evaluadas se encuentran en condiciones adecuadas para su uso. Bajo estas condiciones, las estructuras son aptas para ser utilizadas durante el evento programado a realizarse los días 7 y 8 de febrero, en la expo Guadalajara, ubicado en Av. Mariano Otero 1499, Verde Valle, 44550 Guadalajara, Jalisco.

Se garantiza la estabilidad de las estructuras temporales conforme a los parámetros y condiciones bajo las cuales fueron diseñadas. Se deberá instalar señalización preventiva y restrictiva visible y permanente en la estructura, con la finalidad de limitar el acceso y uso de la planta superior a un máximo de 45 kg/m2 (10-15 personas simultáneamente), esto por el factor de seguridad considerado para carga viva, a fin de garantizar las condiciones de seguridad estructural y evitar la sobrecarga del sistema resistente

La protección de tu inversión es nuestra prioridad.

¡Consulta a nuestros ingenieros especializados!

¿Qué información necesito para cotizar una firma de un Director Responsable de Obra DRO ?

  • Ubicación del proyecto.
  • Tipo de edificación, residencial, comercial, terciaria, industrial, institucional y obras públicas.
  • Descripción de las necesidades del proyecto.

¿Qué es un Director Responsable de Obra (DRO)?

El DRO es un profesional certificado, usualmente arquitecto o ingeniero civil, autorizado por el gobierno local para supervisar y garantizar que una construcción cumpla con las normativas vigentes. Su función principal es asegurar que la edificación sea segura y esté construida conforme a los planos y permisos aprobados.

¿Cuándo es obligatorio contratar un DRO?

La contratación de un DRO u obtener la Firma de Director Responsable de Obra DRO en Zacatelco es obligatoria en los siguientes casos: 

  • Construcciones nuevas de cualquier tipo.
  • Ampliaciones o remodelaciones mayores.
  • Regularización de inmuebles construidos sin permiso.
  • Obras que requieren licencia de construcción.
  • Edificaciones en zonas de riesgo o de alto impacto.
  • Obras en las que solicitan por temas de protección civil.

¿Cómo puedo verificar si un DRO está registrado y autorizado?

Para asegurarte de que un DRO es legalmente autorizado, puedes:

  • Consultar el padrón de DROs en la Secretaría de Desarrollo Urbano y Vivienda (SEDUVI) de tu estado o municipio.
  • Pedirle su cédula profesional y registro oficial.
  • Revisar referencias de trabajos anteriores.

Nuestros trabajos recientes

Dictamen estructural con firma de DRO con carnet vigente para la revisión de una planta industrial de distribuidora EUROPLAST HGO de superficie de construcción de 11,875.23 m2 ubicado en Parque Industrial, Calle Zona Oriente LT 11, 42970, Atitalaquia, Hidalgo. El entregable incluye: (1) Objetivo del estudio, (2) Ubicación Geográfica y antecedentes, (3) Evaluación detallada con enfoque en proteccion civil, (4) Conclusiones y recomendaciones de acuerdo a la información recopilada y (5) Firma de un DRO con jurisdicción en Hidalgo.

Dictamen estructural con vigencia de 3 años con firma de DRO con carnet vigente para la revisión de una planta industrial de distribuidora EURO MEX de superficie de construcción de 21,038.39 m2 ubicado en Av. Adolfo Ruiz Cortines 57, 52977 Atizapán de Zaragoza, Estado de Mexico. El entregable incluye: (1) Objetivo del estudio, (2) Ubicación Geográfica y antecedentes, (3) Evaluación detallada con enfoque en proteccion civil, (4) Conclusiones y recomendaciones de acuerdo a la información recopilada y (5) Firma de un DRO con jurisdicción en Estado de Mexico.

Dictamen estructural con firma de DRO con carnet vigente para la revisión de un anuncio espectacular de estación de servicio Mobil super, ubicada en Coacalco, Tultitlan, Tlalnepantla, El entregable incluye: (1) Objetivo del estudio, (2) Ubicación Geográfica y antecedentes, (3) Evaluación detallada con enfoque estructural, (4) Conclusiones y recomendaciones de acuerdo a la información recopilada y (5) Firma de un DRO con jurisdicción en Estado de Mexico.

Dictamen estructural con Firma de DRO para visto bueno de seguridad de un escenario de 28.8 m2 de superficie colocado a un metro de altura, con 3 pantallas led de 8 x 3 m que se instalara los días 17 al 20 de febrero de 2026, en Av. Colon y, C. 62 294, entre Av. Cupule, Centro, Merida, Yucatán. El entregable incluye: (1) Objetivo del estudio, (2) Ubicación Geográfica y antecedentes, (3) Evaluación detallada con enfoque estructural, (4) Conclusiones y recomendaciones de acuerdo a la información recopilada y (5) Firma de un DRO con jurisdicción en Yucatan.

Dictamen estructural con firma de DRO con carnet vigente en Puebla para la revisión de una nave industrial de 2,300 m2 donde se instalaran paneles solares en la cubierta, ubicado en Parque Industrial Puebla 2000, 72225 Heroica Puebla de Zaragoza, Puebla. El entregable incluye: (1) Objetivo del estudio, (2) Ubicación Geográfica y antecedentes, (3) Evaluación detallada con enfoque estructural, (4) Conclusiones y recomendaciones de acuerdo a la información recopilada y (5) Firma de un DRO con jurisdicción en Puebla.

Dictamen estructural con enfoque en protección civil con firma de DRO para una nave industrial de 1,235.04 m2 de construcción y una nave de 1503.69 m2 de construcción ubicadas en Iztacalco, Ciudad de Mexico El entregable incluye: (1) objetivo del estudio (2) ubicación geográfica y antecedentes (3) evaluación detallada de la inspección con enfoque en protección civil (4) conclusiones y recomendaciones de acuerdo a la información recopilada en sitio (5) Reporte fotográfico de la visita realizada (6) Firma de un DRO con jurisdicción en Ciudad de Mexico

Dictamen estructural para un local de 36 m2 aproximadamente ubicado en un segundo nivel en San Pedro Tlaquepaque, Jalisco. El entregable incluye: (1) Objetivo del estudio. (2) Ubicación geográfica y antecedentes. (2) Evaluación detallada de la inspección con enfoque en enfoque estructural (3) Conclusiones y recomendaciones de acuerdo a la información recopilada en sitio.  (4) Visita a sitio. (5) Reporte fotográfico de la visita realizada.  (6) Firma de un ingeniero especialista estructural.

Firma de DRO con carnet vigente a proyecto ejecutivo de construcción de estación de servicio ubicada en Matamoros, Tamaulipas. Donde el proyecto consiste en la revisión y aprobación de cálculo estructural, planos arquitectónicos, planos estructurales y planos de detalles.
El entregable incluye: • Copia del carnet vigente • Firma de un DRO con jurisdicción en Tamaulipas.

Firma de DRO con carnet vigente a los planos, memorias y cálculos realizados en la propiedad ubicada plaza Carso, Miguel Hidalgo, Ciudad de México. Donde el proyecto consiste en la revisión y firma de refuerzo estructural para estructura de local comercial de 2 niveles de 902 m2 planta baja y 1435 m2 4de planta alta en plaza Carso. El entregable incluye: firmas necesarias a planos, memorias y cálculos realizados, y copia de carnet vigente de DRO con jurisdicción en Ciudad de Mexico.

Contacta ahora y solicita un Dictamen Estructural

Solicita una cotización sin compromiso llamando o enviando un mensaje por WhatsApp al Tel. (+52) 5521869585. Nuestro equipo de ingenieros está listo para resolver todas tus dudas y ofrecerte la mejor solución.

¡Requiero asesoría de un experto!

Si necesitas la asesoría de un ingeniero experto, estamos aquí para ayudarte a desarrollar un proyecto seguro y eficiente. Escríbenos por WhatsApp y agenda una llamada con nosotros al (+52) 5521869585.

Nuestra cobertura para realizar Dictámenes Estructurales

Aguascalientes
Baja California
Baja California Sur
Campeche
Chiapas
Chihuahua
Ciudad de México
Coahuila
Colima
Durango
Guanajuato
GuerreroHidalgo
Jalisco
Estado de México
Michoacán

Morelos
Nayarit
Nuevo Leon
Oaxaca
Puebla
Queretaro
Quintana Roo
San Luis Potosi
Sinaloa
Sonora
Tabasco
Tamaulipas
Tlaxcala
Veracruz
Yucatan
Zacatecas

¡Estoy listo para cotizar!

Marca o envía un mensaje WhatsApp al (+52) 5521869585 y con gusto uno de nuestros asesores te solicitará la información necesaria para darte una cotización de acuerdo a las características de tu proyecto.

Grupo Estructural expertos en Calculo y Diseño de Cimentación, Cálculo y diseño de estructuras, firmas de Director Responsable de Obra DRO y Dictámenes Estructurales en México.